
1889 Bacon St Suite# 12
San Diego, CA 92107
CA DRE# 01301301
CA DRE# 01862028


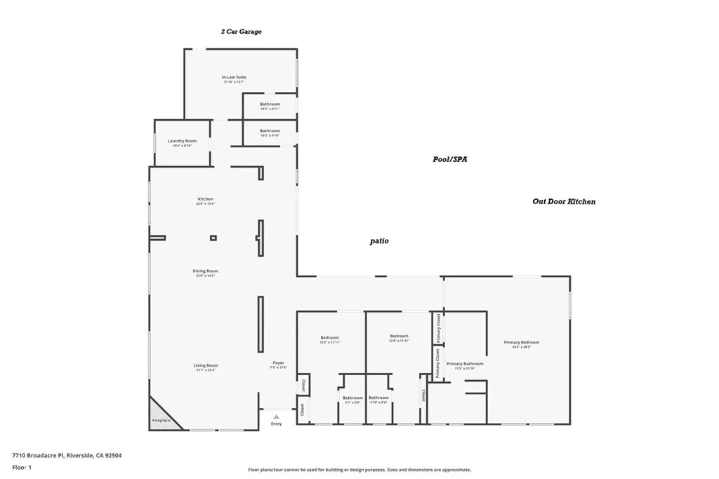
Welcome to your own Hacienda Style Estate in Arlington Heights, one of Riversides most sought-after communities. This truly unique property blends timeless architecture with modern upgrades something you simply dont find in newer construction. Every square inch of the home, inside and out, has been thoughtfully remodeled with meticulous attention to detail. The home features stunning black metal French doors, black window frames, an iron front door, and upgraded garage doors, creating a striking first impression. The fully remodeled kitchen showcases quartz countertops, a designer backsplash, and brand-new cabinetry. Additional new cabinetry has been installed in the bathrooms and the private in-law suite. Beautiful brown bamboo flooring flows throughout the home, complemented by elegant Greek travertine-lined extra-wide hallways leading to the bedrooms. New lighting, chandeliers, and oversized metal ceiling fans have been installed throughout. All bathrooms have been fully remodeled, and the garage is finished. Step outside to your private resort-style backyard, designed for year-round entertaining. Enjoy a newly remodeled pool with new pumps and heater, a newer AC unit, and a spectacular full-service outdoor kitchen perfect for hosting large gatherings. Multiple outdoor seating areas create an ideal space for entertaining family and friends. The landscaping has been recently upgraded with vibrant plantings and a top-of-the-line Bluetooth-controlled irrigation system. A custom chicken coop sits behind the white gates, keeping the hens away from the pool and kitchen areas.

One fine body…