
1889 Bacon St Suite# 12
San Diego, CA 92107
CA DRE# 01301301
CA DRE# 01862028


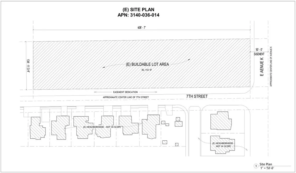
Introducing an exceptional chance to develop in one of Lancasters most promising growth areas. This 2.16-acre (94,090 SF) residential parcel, APN: 3140-036-014, zoned LRR1-7000, is perfectly positioned for investors or builders seeking a ready-to-go project with impressive upside. A Property Survey along with Preliminary Concept Architectural & Design Plans, including subdivision layouts, site studies, and detailed renderings for eight single-family homes on quarter-acre lots, have already been completed by Drury Architects and are available upon request. Much of the upfront planning is done, making this an ideal plug-and-play development opportunity. The seller has also added value by installing quality fencing around the entire parcel, giving buyers added security, clear boundaries, and reduced prep work ahead of development. Positioned on a flat, fully-fenced corner lot at Avenue K and 7th Street East, this property boasts approximately 608 feet of frontage on 7th Street East and 154 feet of frontage on Avenue K. With all major utilities already at the street (electricity, water, and sewer), developers benefit from lower infrastructure costs and simplified construction logistics. Located in the heart of Lancaster and surrounded by established neighborhoods, schools, businesses, and essential services, this parcel sits in a high-demand residential corridor with strong long-term growth. Whether you're preparing to build immediately or securing land in a rapidly expanding market, this property delivers both value and vision. Dont miss the chance to capitalize on a rare deve

One fine body…