
1889 Bacon St Suite# 12
San Diego, CA 92107
CA DRE# 01301301
CA DRE# 01862028


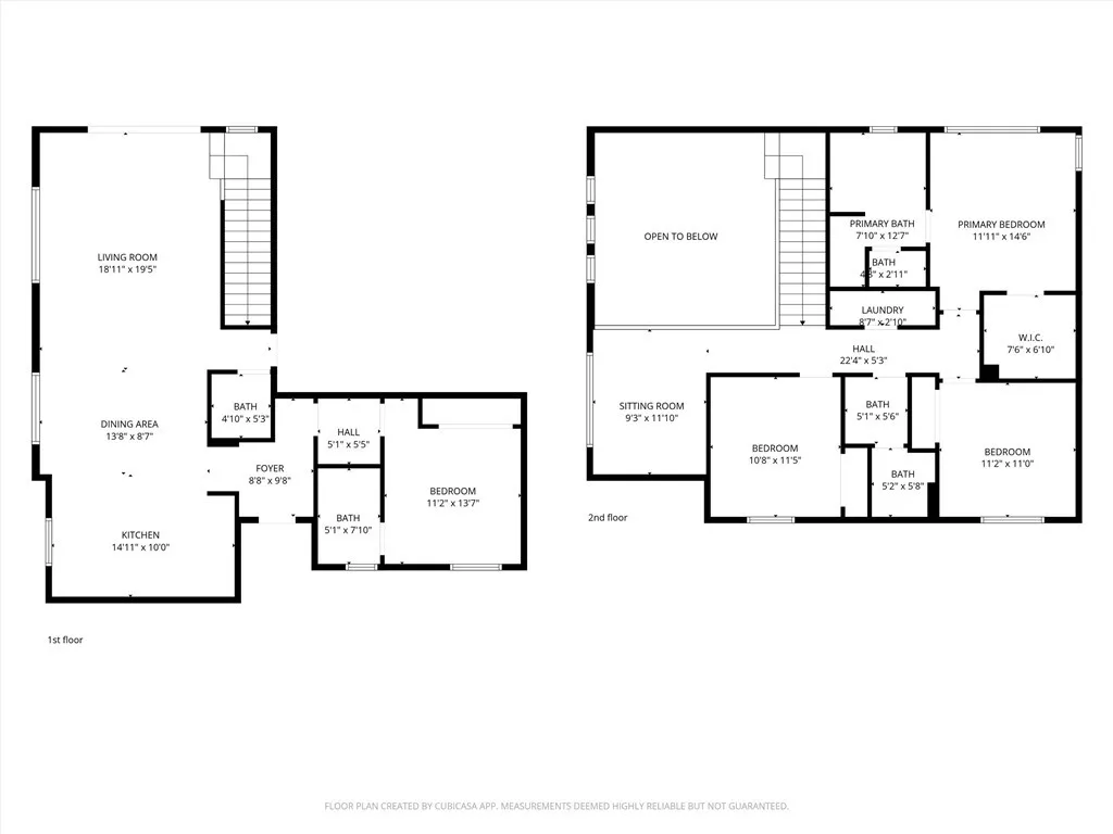
Fabulous opportunity to live in the village of Cypress Village in Irvine in this beautifully appointed, 2-story premium lot Trellis Court Plan 3 home. Built in 2018, this bright home boasts a spacious open floorplan with high ceilings in the living area and access to the side yard with no rear neighbors. The home features 2,000sq/sf of living space with 4 bedrooms and 3.5 bathrooms, including a downstairs bedroom and full bath, along with an upstairs loft. The gourmet kitchen opens up to the family room and includes premium dark wood cabinets, upgraded quartz countertops with a custom subway tile backsplash, kitchen island, and stainless steel appliances. Additional upgrades include wood flooring throughout downstairs, upgraded premium vinyl flooring upstairs, upgraded tile in upstairs laundry & baths, custom window coverings, designer paint, ceiling fans, and recessed lighting throughout entire home. Upstairs features a spacious master bedroom with a master bath along with 2 other bedrooms and 2nd full bath along with a loft. Garage features a Tesla 3rd generation charger with 60 amps & 240 volts for fast car charging. Enjoy resort style amenities including hiking & biking trails, sparkling swimming pool, clubhouse, and walking distance to all of the Great Park amenities, including Fivepoint Ice Rink. Close shopping at Woodbury Town Center & the Irvine Spectrum, parks, the Jeffrey Trail, and easy access to the freeways and employment centers. Zoned to award winning Irvine schools (Cypress Village Elementary, Jeffery Trail Middle School, and Irvine HS). Low Mello Roos of $1

One fine body…