
1889 Bacon St Suite# 12
San Diego, CA 92107
CA DRE# 01301301
CA DRE# 01862028


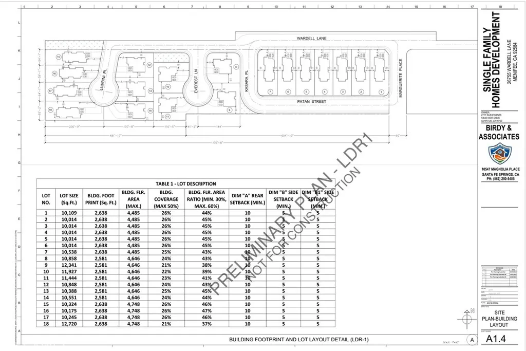
Prime Development Opportunity in Menifee 6.76 Acres Exceptional 6.76-acre development site located in the heart of Menifee, one of Southern Californias fastest-growing cities. This parcel has completed a formal pre-planning review with multiple city departments, including Planning, Public Works, Building & Safety, and Fire. Key Highlights: Pre-Planning Approval: Preliminary review supports 18 single-family lots under LDR-1 zoning. Potential zoning adjustment to LDR-2 could allow up to 28 lots. Lot Sizes: Proposed lots range from approx. 7,200 sq. ft. (LDR-2) to 10,000 sq. ft. (LDR-1). Utilities: All essential utilities are available in nearby streets. EMWD has confirmed sewer line capacity, with utility agencies open to assisting in extending service connections. Engineering Plans: Pre-planning design drawings prepared by BIRDY & Associates, a registered California engineering firm, with further consultation available for developers. Surroundings: Centrally located near schools, city parks, shopping, and within a thriving residential community. Adjacent to a fully developed neighborhood, enhancing desirability and property value. This site is development-ready, with reduced upfront planning time, and is an outstanding opportunity to build in a high-demand market. Location: Menifee, CA Lot Size: 6.76 Acres Potential: 1828+ Single-Family Homes Buyer to verify all information with the City of Menifee and Utility Agencies.

One fine body…