
1889 Bacon St Suite# 12
San Diego, CA 92107
CA DRE# 01301301
CA DRE# 01862028


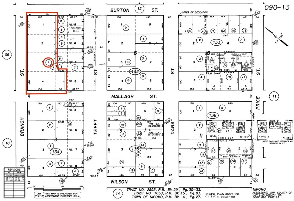
This property is situated on the corner of W Branch Street & North Mallagh Street. The property is bounded on three sides by the Burton "paper" street, Branch St, and Mallagh St. The "paper" Burton St is a dedicated County right-of-way and not a finished street. Directly across the street from the subject property are existing homes. The property is zoned Office Professional which may be developed as commercial or residential or a mix of both. The land may be developed in a number of ways. The Workforce Housing Subdivision ordinance allows for high-density, individually owned residential properties, with lots as small as 1000 square feet. It may also be developed as high density multi-family units as high as 38 units per acre. See Supplements for explanations on these two alternative development opportunities. Part of the value of this property for residential is its proximity to one of the most popular restaurants on the central coast, Jockos Steakhouse. The land is flat and is within the Nipomo Urban Reserve Line.

One fine body…