
1889 Bacon St Suite# 12
San Diego, CA 92107
CA DRE# 01301301
CA DRE# 01862028


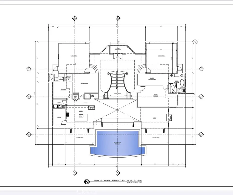
Seize This Once-in-a-Lifetime Opportunity to Own One of Glendale's Last Private Lots! Welcome to an unparalleled opportunity in the heart of Glendale! This expansive 41,000+ square foot lot is a rare gem, offering the ultimate blank canvas for you to bring your architectural dreams to life. Imagine waking up each day to breathtaking 360-degree views of Glendale's skyline, with the majestic mountains serving as your backdrop. Envision your very own luxury estate, where every detail is tailored to your vision. From a grand mansion with a sweeping circular driveway, a shimmering pool, and a tennis court to a sprawling multi-home developmentthis property is zoned and ready to make your wildest dreams a reality. Located at the end of an exclusive cul-de-sac in the prestigious Chevy Chase Country Club neighborhood, this lot offers unmatched privacy and tranquility. Youll enjoy serene views of Downtown LA, Glendale, and the surrounding canyons from the comfort of your own secluded paradise. With a private entrance and an unpaved road leading directly to the property, this lot is primed for development. The survey is complete, and plans for a mansion are already in the works. Don't miss this rare chance to create something truly extraordinary!

One fine body…