
1889 Bacon St Suite# 12
San Diego, CA 92107
CA DRE# 01301301
CA DRE# 01862028


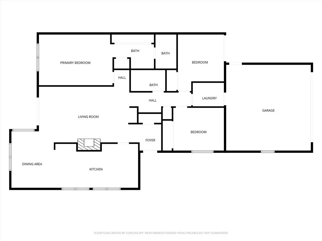
Welcome to 8 Dogwood, an exquisite 3 bedroom, 2 bath home offering a coveted, turn-key lifestyle in one of Irvine's most sought-after communities. Step inside to an open-concept floor plan bathed in natural light, courtesy of large dual-pane windows and a desirable southwest orientation. The seamless flow is accentuated by recessed lighting, durable wood-styled vinyl flooring, and a sophisticated, marble-inspired gas fireplace that serves as a stunning focal point. The designer kitchen is a culinary dream, featuring pristine white cabinetry, quartz countertops, stainless steel appliances, and beautiful tiling accent wallsperfect for both everyday living and entertaining. The primary master suite features a modern en-suite bath with dual sinks and walk-in shower. One of the two secondary bedrooms offers the unique advantage of a private enclosed yard. Both bathrooms present an elegant finish, complete with white cabinetry, chic gold-tone hardware, and contemporary LED-lighted mirrors. The property is complete with a newly upgraded 2 car garage with epoxy flooring, new garage door opener with remote wifi access and custom cabinetry. Residents have access to exceptional community amenities, including a clubhouse, pool, spa, and playground. Perfectly situated near top-rated Irvine schools, UCI, parks, premium shopping, and dining. This immaculate, move-in-ready home was recently appraised at $1.475 million and is now aggressively priced for a swift sale. An unparalleled opportunity awaits to make 8 Dogwood your new home.

One fine body…